LN 0,5T

176 EUR (fara TVA)

Cod produs: LN0 0,5T

Producator: BRANO, Cehia

Cantitate:

Rating:

Adauga un review

Nici un review

ADAUGA UN REVIEW

LN/0.5t/10m troliu cu manivela


NUMAI LA COMANDA!

1. DOMENIUL DE UTILIZARE

Troliul cu manivelă, model LN cu capacitate de ridicare de 0,5t si 1t, este creat pentru a fi folosit la ridicarea, tragerea, coborârea unei încărcături, în condiţiile specificate în prezenta broşură.

Accesoriile mecanismului sunt :
a) manivela

b) bolturile de prindere a manivelei

Mecanismul îndeplineşte cerinţele Directivei 98/37/EC a Parlamentului European precum şi cerinţele următoarelor standarde armonizate : CSN EN ISO 12100-1, CSN EN ISO 12100-2, CSN EN 1050 şi CSN EN 13157.

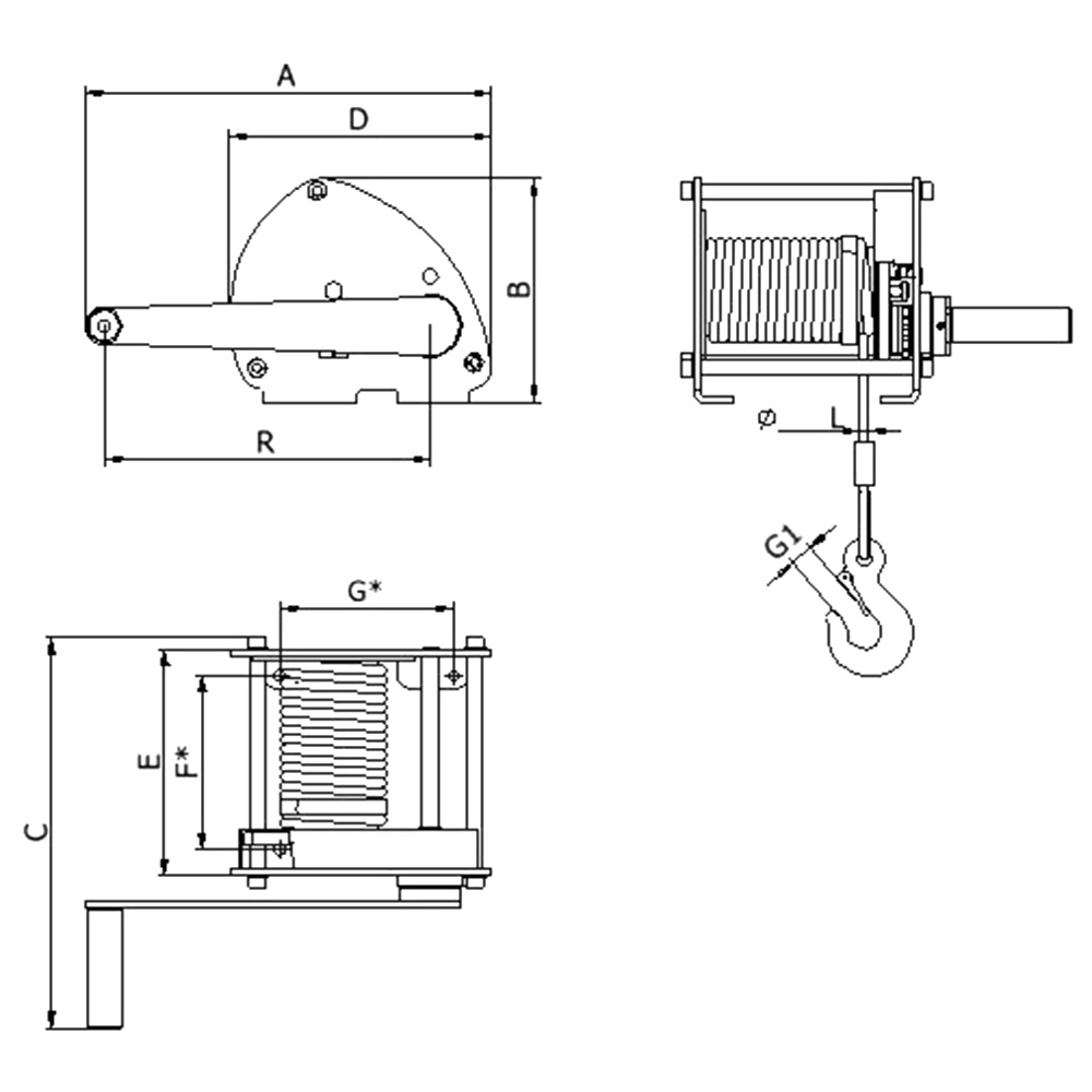
1.1 Principalele dimensiuni
Model
Principalele dimensiuni (mm)
A
B
C
D
E
F*
G*
G1
L
R
LN/0,5t
264
167
344
193
186
144
115
19
5
200
LN/ 1t
373
207
460
240
209
160
160
19
8
300
*) distanţele dintre găurile prin care se fixează mecanismul pe o anumită suprafaţă.

2. INSTALAREA MECANISMULUI
Pentru montare, manivela se potriveşte la capătul corespunzător al tamburului, astfel încât orificiile de montaj să se suprapună cu ale acestuia, apoi se introduc bolţurile de fixare.
! Atenţie :

1) Înainte de a fixa mecanismul pe o anumită suprafaţă, asiguraţi-vă întodeauna că acea suprafaţă este suficient de solidă pentru a putea suporta atât greutatea mecanismului cât şi a încărcăturii

2) Fixaţi mecanismul cu toate cele patru şuruburi

3) Verificaţi dacă cablul este curat, intact şi fără distorsiuni

Utilizatorul este răspunzător pentru crearea condiţiilor de instalare!

3.UTILIZAREA MECANISMULUI
3.1 Poziţiile mecanismului în timpul manevrării:
a) la tractarea unei încărcături « în linie », cablul trebuie sa fie perpendicular pe tambur

b) dacă troliul şi încărcătura nu se găsesc pe aceeaşi linie în timpul tragerii/ridicării, va trebui să se folosească un scripete pentru ghidarea cablului
dimensiunile minime ale scripetelui sunt specificate în tabel

4. VERIFICAREA MECANISMULUI
Se face de catre o persoană/echipă competentă, de fiecare dată cand este cumpărat un mecanism nou sau reparat cel existent. Există două faze ale verificării:
a) Verificarea zilnică, care se efectuează înaintea fiecărei utilizări, determinându-se dacă mecanismul este deteriorat sau prezintă vreun defect care ar putea să cauzeze accidente. De asemenea, se stabileşte dacă este necesară o verificare detaliată a mecanismului.
b) Verificarea regulată, care se poate face chiar la locul utilizării mecanismului, sub supravegherea unei persoane competente, astfel:
1) în cazul unei utilizări normale – o dată pe an

2) în cazul unei utilizări intense – la fiecare 6 luni

3) în cazul unei utilizări ocazionale – la recomandarea persoanei responsabile cu verificarea sau a echipei care lucrează direct cu mecanismul


5. ÎNTREŢINEREA MECANISMULUI
Înaintea unei noi ungeri a mecanismului, se îndepărtează întâi vechiul strat de grăsime de pe roata dinţată şi celelalte componente, se curăţă cu solvent si apoi se aplică noul strat. Cablul va trebui să fie uns cel puţin o dată pe săptămână, în funcţie de gradul de utilizare, iar înainte de ungere se va curăţa cu o perie. În timpul ungerii cablului, lubrifiantul se va aplica cu o pensulă.
În cazul în care mecanismul este utilizat în mediu corosiv sau acid, ungerea se va efectua mai des decât în cazul unei utilizări în mediu obişnuit.
! ATENŢIE:
1) Întreţinerea se va efectua într-un mediu curat

2) Păstraţi locul de utilizare al mecanismului, curat, pt. a evita pătrunderea substanţelor străine printre componente

3) Nu demontaţi mecanismul mai des decît este necesar

4) Utilizarea necorespunzătoare sau ungerea insuficientă, scade considerabil durata de viaţă a mecanismului şi poate provoca accidente


6. PROTECŢIE
În cazul unei utilizări necorespunzătoare sau a unei înteţineri defectuoase a mecanismului creşte riscul producerii unor accidente de muncă. În acest sens, este indicat să fie respectate următoarele măsuri de protecţie :
6.1)Înainte de utilizare :
ü NU ridicaţi sau transportaţi încărcături în apropierea persoanelor

ü NU încărcaţi troliul peste capacitatea sa de ridicare (vezi tabel 1)

ü NU folosiţi troliul dacă acesta este defect sau scos din uz

ü NU folosiţi cârlige modificate sau deformate

ü ASIGURAŢI-VĂ că troliul este manevrat de persoane calificate, instruite şi care au luat cunoştinţă de conţinutul prezentelor instrucţiuni

ü ASIGURAŢI-VĂ că suprafaţa pe care este montat troliul, poate suporta atât greutatea acestuia cât şi a încărcăturii transportate

ü ÎNTODEAUNA avertizaţi persoanele aflate în preajma mecanismului, înainte de a începe lucrul cu acesta

ü ÎNTODEAUNA folosiţi numai cablul original

ü VERIFICAŢI troliul înainte de fiecare folosire (vezi punctul 4)

6.2) În timpul utilizării :
ü ASIGURAŢI-VĂ că încărcătura este corect prinsă pe cârlig

ü ASIGURAŢI-VĂ că siguranţa cârligului este corect prinsă

ü ATENŢIE la ridicarea sau coborârea excesivă a încărcăturii, să nu se depăşească lungimea de utilizare a cablului (marcajul roşu de pe cablu)

ü ÎNTODEAUNA mecanismul va fi manevrat exclusiv de către forţa umană

ü NU folosiţi improvizaţii asupra mânerului manivelei

ü NU permiteţi balansarea încărcăturii sau impactul acesteia cu orice alt obiect

ü NU folosiţi cablul decât cu ajutorul cârligului
nu îl folosiţi pt. a lega încarcătura

ü NU executaţi nici o operaţie, modificare asupra încărcăturii ancorate (tăiere, sudură, etc.)

ü NU manevraţi cablul fără mănuşi de protecţie

ü NU atingeţi părţile aflate în mişcare, în timpul operării
UTILIZAŢI scripete, ori de câte ori este nevoie (vezi punctul 3)


sigla
sigla
sigla
sigla
sigla
sigla
sigla
sigla
sigla
sigla
sigla
sigla
sigla
sigla
sigla
sigla
sigla
sigla
sigla
sigla
sigla
sigla
sigla
sigla